Die Szenarien basieren auf der in der Bau- und Zonenordnung definierten maximalen Baumassenziffer (BMZ). Für eine genaue Bewertung wird eine detaillierte Analyse empfohlen.
Bestand
Einheiten: nan
Preis CHf/m²/J: nan CHf/m²/J
Vermietbare Fläche (m²): nan m²
Geschätzte Bruttomiete p.a. (CHF): nan CHF
Leerstandsverlust (CHF): nan CHF
Betriebskosten (CHF): nan CHF
Nettomiete p.a. (CHF): nan CHF
Sanierung
Einheiten: nan
Preis CHf/m²/J: nan CHf/m²/J
Vermietbare Fläche (m²): nan m²
Geschätzte Bruttomiete p.a. (CHF): nan CHF
Leerstandsverlust (CHF): nan CHF
Betriebskosten (CHF): nan CHF
Nettomiete p.a. (CHF): nan CHF
Neubau
Einheiten: 21
Preis CHf/m²/J: 347 CHf/m²/J
Vermietbare Fläche (m²): 2,287 m²
Geschätzte Bruttomiete p.a. (CHF): 794,624 CHF
Leerstandsverlust (CHF): -22,249 CHF
Betriebskosten (CHF): -31,785 CHF
Nettomiete p.a. (CHF): 740,590 CHF
3. Machbarkeit
Szenarienanalyse
Interaktive Auswertung der Szenarienkennwerte. Y-Achse über das Dropdown-Menü wählbar.
Szenario:
Kennzahlen – Höchste Einnahmen
Flächen
GF Tot.
4,047 m²
GF unterird.
1,722 m²
GF oberird.
2,325 m²
Nettofläche
1,704 m²
Effizienz
73.28 %
Vol. oberird.
7,242 m³
Baumassenreserve
66 m³
Programm
Total Wohnungen
32
1.5-Zi. Wohnungen
24
49 m²
2.5-Zi. Wohnungen
8
67 m²
3.5-Zi. Wohnungen
0
–
4.5-Zi. Wohnungen
0
–
5.5-Zi. Wohnungen
0
–
Kosten
Projektkosten
-16,780 TCHF
Kosten/m² GF oberird.
4,863 CHF/m²
Kosten/m² Nettofläche
6,636 CHF/m²
Erträge
Total Erträge
786,800 CHF/a
Ertrag/m² NF
461 CHF/(m²·a)
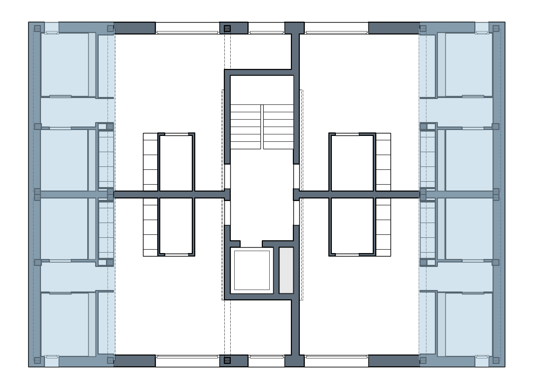
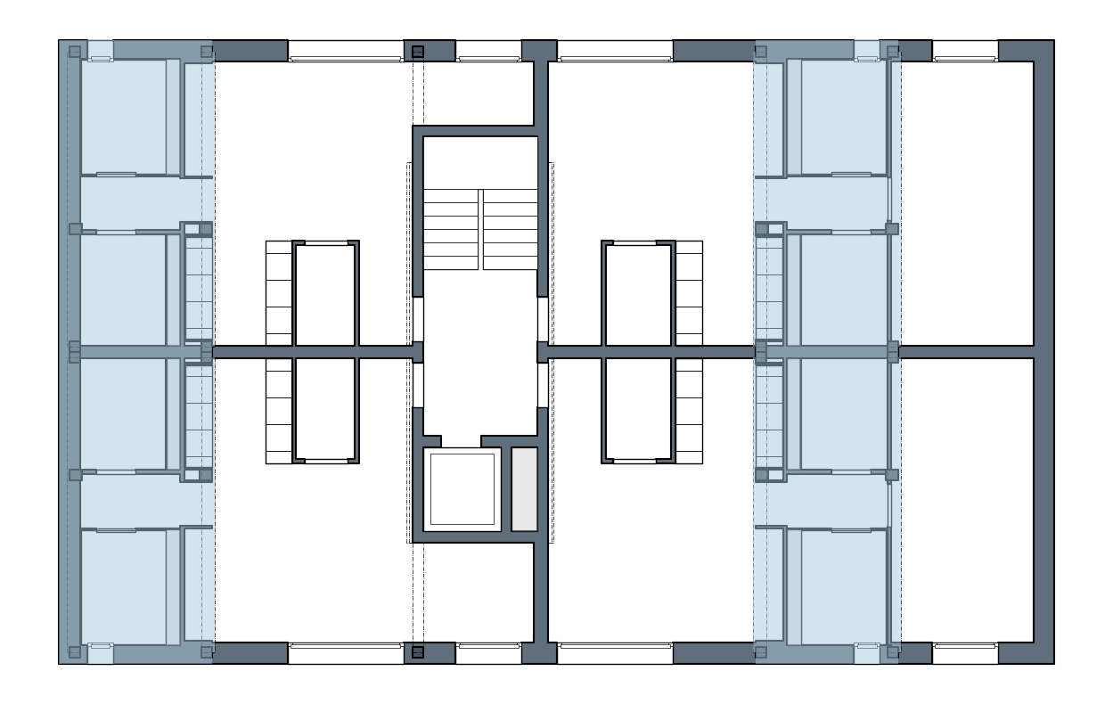
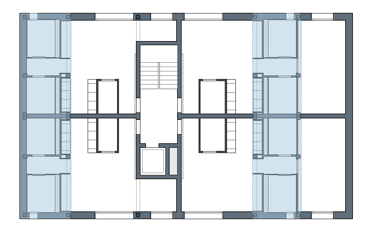
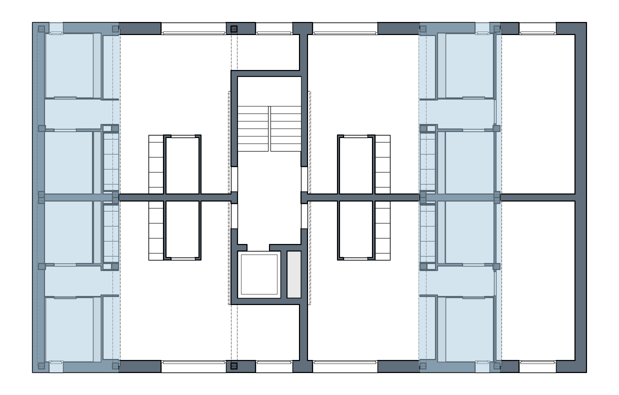
Grundriss / Regelgeschoss – Höchste Einnahmen
Kern 0 – Regelgeschoss
Kern 1 – Regelgeschoss
Kern 2 – Regelgeschoss
Kern 3 – Regelgeschoss
Wohnungsspiegel
Typ
Nettofläche (m²)
Kern
Geschoss
Monatsmiete (CHF)
Jahresmiete (CHF)
Leerstandsverl. (CHF)
Betriebskosten (CHF)
Nettoertrag (CHF)
1.5-Zi.Whg
45
1
EG
1,670
19,990
-560
-800
18,630
1.5-Zi.Whg
45
1
1.OG
1,670
19,990
-560
-800
18,630
1.5-Zi.Whg
45
1
EG
1,660
19,930
-560
-800
18,570
1.5-Zi.Whg
45
1
1.OG
1,660
19,930
-560
-800
18,570
1.5-Zi.Whg
47
1
EG
1,750
20,970
-590
-840
19,550
1.5-Zi.Whg
47
1
1.OG
1,750
20,970
-590
-840
19,550
1.5-Zi.Whg
45
1
EG
1,660
19,930
-560
-800
18,570
1.5-Zi.Whg
45
1
1.OG
1,660
19,930
-560
-800
18,570
1.5-Zi.Whg
55
2
EG
2,020
24,260
-680
-970
22,610
1.5-Zi.Whg
55
2
1.OG
2,020
24,260
-680
-970
22,610
2.5-Zi.Whg
71
2
EG
2,530
30,380
-850
-1,220
28,320
2.5-Zi.Whg
71
2
1.OG
2,530
30,380
-850
-1,220
28,320
1.5-Zi.Whg
57
2
EG
2,100
25,240
-710
-1,010
23,520
1.5-Zi.Whg
57
2
1.OG
2,100
25,240
-710
-1,010
23,520
2.5-Zi.Whg
71
2
EG
2,530
30,380
-850
-1,220
28,320
2.5-Zi.Whg
71
2
1.OG
2,530
30,380
-850
-1,220
28,320
1.5-Zi.Whg
45
3
EG
1,650
19,800
-550
-790
18,460
1.5-Zi.Whg
45
3
1.OG
1,650
19,800
-550
-790
18,460
2.5-Zi.Whg
62
3
EG
2,210
26,520
-740
-1,060
24,710
2.5-Zi.Whg
62
3
1.OG
2,210
26,520
-740
-1,060
24,710
1.5-Zi.Whg
47
3
EG
1,730
20,780
-580
-830
19,370
1.5-Zi.Whg
47
3
1.OG
1,730
20,780
-580
-830
19,370
2.5-Zi.Whg
62
3
EG
2,210
26,520
-740
-1,060
24,710
2.5-Zi.Whg
62
3
1.OG
2,210
26,520
-740
-1,060
24,710
1.5-Zi.Whg
50
4
EG
1,850
22,160
-620
-890
20,650
1.5-Zi.Whg
50
4
1.OG
1,850
22,160
-620
-890
20,650
1.5-Zi.Whg
50
4
EG
1,840
22,100
-620
-880
20,600
1.5-Zi.Whg
50
4
1.OG
1,840
22,100
-620
-880
20,600
1.5-Zi.Whg
52
4
EG
1,930
23,140
-650
-930
21,570
1.5-Zi.Whg
52
4
1.OG
1,930
23,140
-650
-930
21,570
1.5-Zi.Whg
50
4
EG
1,840
22,100
-620
-880
20,600
1.5-Zi.Whg
50
4
1.OG
1,840
22,100
-620
-880
20,600
Parkplatz
nan
N/A
1.UG
3,200
38,400
-1,080
-1,540
35,790
Total
–
–
65,560
786,800
-22,040
-31,500
733,310
Kosten
Die Kosten des Referenzdesigns werden mit einer elementbasierten Kostenberechnung ermittelt. Ergänzend werden die Kosten für Untergeschoss, Planung, Generalunternehmer, Landschaft sowie die allgemeine MEP separat ausgewiesen.
eBKP-H
Beschreibung
Betrag (CHF)
Anteil
B00
Vorbereitung
-936,800 CHF
5.6%
C02
Wandkonstruktion
-455,100 CHF
2.7%
C03
Stützenkonstruktion
-115,100 CHF
0.7%
C04
Deckenkonstruktion, Dachkonstruktion
-1,196,800 CHF
7.1%
C05
Ergänzende Leistung zu Konstruktion
-50,300 CHF
0.3%
CDE
Untergeschoss
-2,855,400 CHF
17.0%
D00
MEP_General
-767,100 CHF
4.6%
D01
Technik Gebäude
-627,200 CHF
3.7%
D05
Wärmetechnische Anlage
-144,400 CHF
0.9%
D07
Lufttechnische Anlage
-74,400 CHF
0.4%
D08
Wassertechnische Anlage
-476,800 CHF
2.8%
D09
Abwassertechnische Anlage
-76,800 CHF
0.5%
D12
Beförderungsanlage
-120,000 CHF
0.7%
E02
Äussere Wandbekleidung über Terrain
-729,400 CHF
4.3%
E03
Element in Aussenwand
-475,900 CHF
2.8%
F01
Dachhaut
-488,600 CHF
2.9%
F02
Element zu Dach
-40,000 CHF
0.2%
G01
Trennwand, Innentür, Innentor
-414,300 CHF
2.5%
G02
Bodenbelag
-521,200 CHF
3.1%
G03
Wandbekleidung
-106,700 CHF
0.6%
G04
Deckenbekleidung
-900 CHF
0.0%
G05
Einbauten, Schutzeinrichtung zu Ausbau
-843,700 CHF
5.0%
G06
Ergänzende Leistung zu Ausbau
-81,700 CHF
0.5%
I00
Landschaft
-560,900 CHF
3.3%
V00
TU Kosten
-1,648,900 CHF
9.8%
V00
Planung
-1,604,200 CHF
9.6%
W00
Nebenkosten
-180,300 CHF
1.1%
Z00
MwSt
-1,187,100 CHF
7.1%
Herstellungskosten
-16,780 TCHF
100%
Projektablauf
Gesamtübersicht der Projektphasen von der Machbarkeitsstudie bis zur Übergabe. Das Diagramm ist interaktiv – Balken anklicken oder zoomen für Details.
Terminplan (Bauprogramm)
Detaillierter Zeitplan der geplanten Realisierung. Das Diagramm ist interaktiv – Balken anklicken oder zoomen für Details.
Discounted Cash Flow
1.32x
Erträge / Kosten
5.30 Mio. CHF
Net Present Value (NPV)
60.8 %
IRR (annualisiert)
47.8 %
Return on Invested Capital
Alle Beträge in TCHF (Tausend CHF). Abzinsungssatz: gemäss Projektparameter.
Beschreibung
2026-Q3
2026-Q4
2027-Q1
2027-Q2
2027-Q3
2027-Q4
2028-Q1
2028-Q2
2028-Q3
2028-Q4
2029-Q1
2029-Q2
2029-Q3
Kosten
Bau
-
-
-
-434
-
-434
-
-
-1,814
-
-4,188
-3,368
-6,002
Machbarkeit
-87
-
-
-
-
-
-
-
-
-
-
-
-
Vorbereitung
-
-
-
-
-
-
-
-1,814
-
-
-
-
-
Gesamtkosten
-87
-
-
-434
-
-434
-
-1,814
-1,814
-
-4,188
-3,368
-6,002
Erlöse
Climate_Certificates
-
-
-
-
-
-
-
-
-
-
-
-
40
Sonstiger Erlös
-
-
-
-
-
-
-
-
-
-
-
-
23,899
Gesamterlöse
-
-
-
-
-
-
-
-
-
-
-
-
23,940
Netto Cash Flow
-87
-
-
-434
-
-434
-
-1,814
-1,814
-
-4,188
-3,368
17,938
Diskontierter Cash Flow
-87
-
-
-427
-
-423
-
-1,752
-1,743
-
-3,986
-3,189
16,903
Kum. Cash Flow
-87
-87
-87
-520
-520
-954
-954
-2,768
-4,582
-4,582
-8,770
-12,137
5,800
Kum. disk. Cash Flow
-87
-87
-87
-514
-514
-937
-937
-2,689
-4,432
-4,432
-8,418
-11,607
5,296
Kennzahlen – Bester Wohnungsmix
Flächen
GF Tot.
3,534 m²
GF unterird.
1,315 m²
GF oberird.
2,219 m²
Nettofläche
1,704 m²
Effizienz
76.81 %
Vol. oberird.
6,912 m³
Baumassenreserve
396 m³
Programm
Total Wohnungen
24
1.5-Zi. Wohnungen
12
45 m²
2.5-Zi. Wohnungen
0
–
3.5-Zi. Wohnungen
4
87 m²
4.5-Zi. Wohnungen
8
102 m²
5.5-Zi. Wohnungen
0
–
Kosten
Projektkosten
-14,433 TCHF
Kosten/m² GF oberird.
4,331 CHF/m²
Kosten/m² Nettofläche
5,638 CHF/m²
Erträge
Total Erträge
634,680 CHF/a
Ertrag/m² NF
372 CHF/(m²·a)
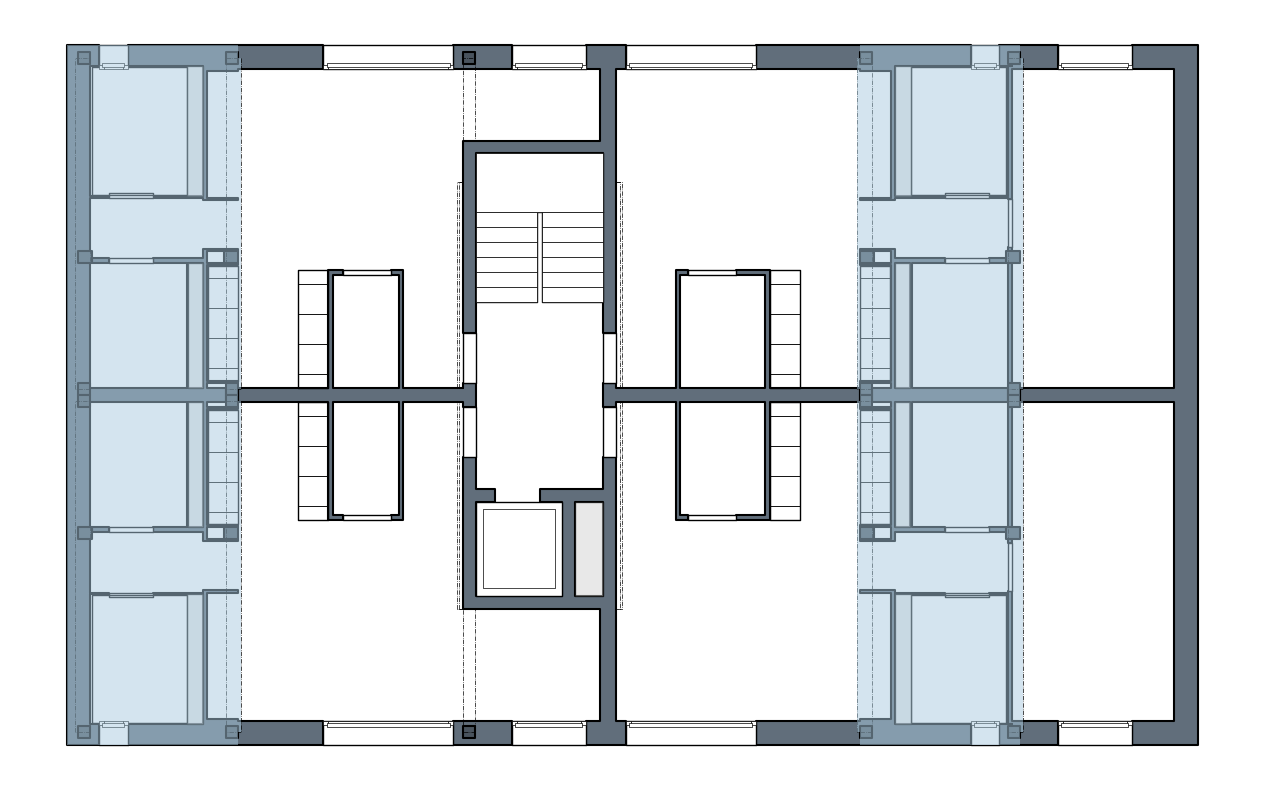
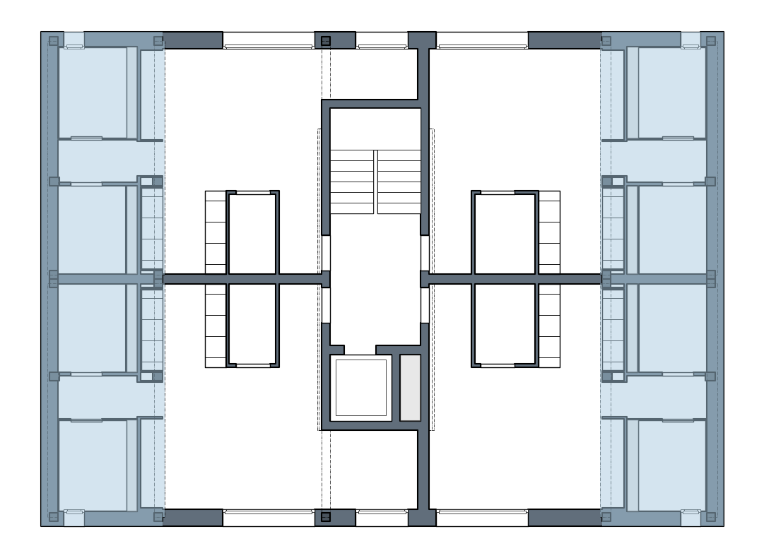
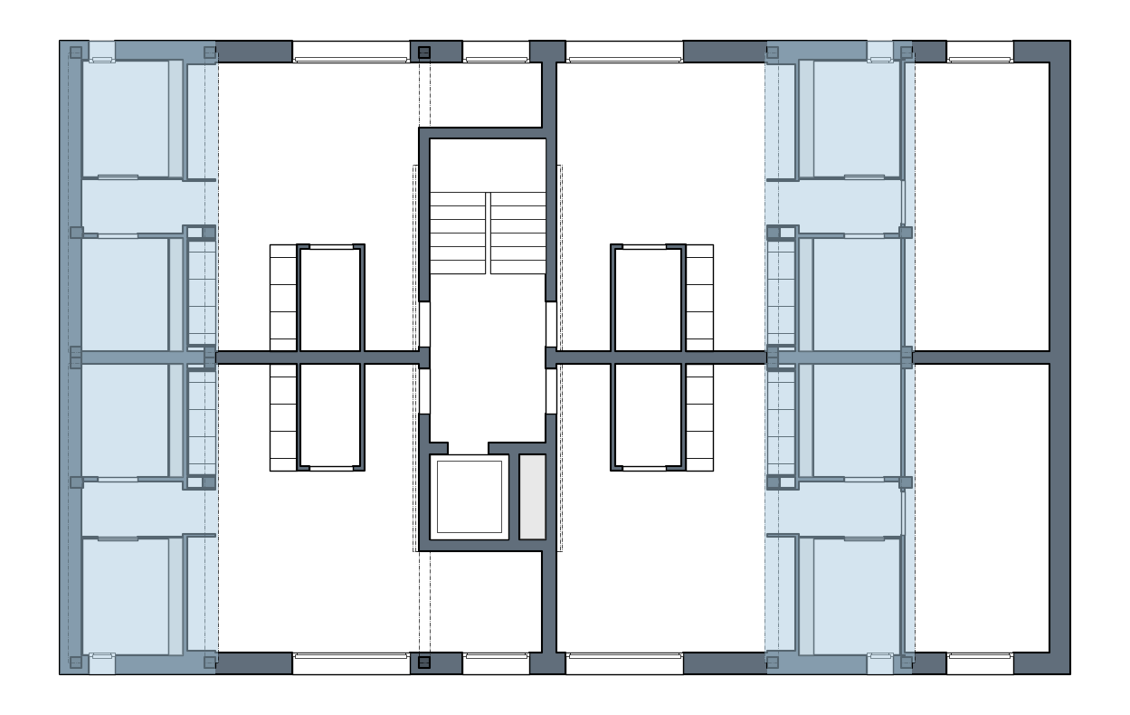
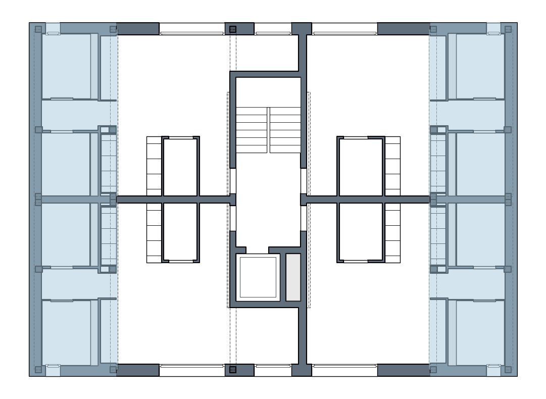
Grundriss / Regelgeschoss – Bester Wohnungsmix
Kern 0 – Regelgeschoss
Kern 1 – Regelgeschoss
Kern 2 – Regelgeschoss
Wohnungsspiegel
Typ
Nettofläche (m²)
Kern
Geschoss
Monatsmiete (CHF)
Jahresmiete (CHF)
Leerstandsverl. (CHF)
Betriebskosten (CHF)
Nettoertrag (CHF)
4.5-Zi.Whg
104
1
EG
2,520
30,190
-850
-1,210
28,130
4.5-Zi.Whg
104
1
1.OG
2,520
30,190
-850
-1,210
28,130
1.5-Zi.Whg
40
1
EG
1,470
17,580
-490
-700
16,390
1.5-Zi.Whg
40
1
1.OG
1,470
17,580
-490
-700
16,390
4.5-Zi.Whg
106
1
EG
2,570
30,830
-860
-1,230
28,730
4.5-Zi.Whg
106
1
1.OG
2,570
30,830
-860
-1,230
28,730
1.5-Zi.Whg
40
1
EG
1,470
17,580
-490
-700
16,390
1.5-Zi.Whg
40
1
1.OG
1,470
17,580
-490
-700
16,390
1.5-Zi.Whg
56
2
EG
2,060
24,710
-690
-990
23,030
1.5-Zi.Whg
56
2
1.OG
2,060
24,710
-690
-990
23,030
3.5-Zi.Whg
87
2
EG
2,680
32,220
-900
-1,290
30,030
3.5-Zi.Whg
87
2
1.OG
2,680
32,220
-900
-1,290
30,030
1.5-Zi.Whg
58
2
EG
2,140
25,690
-720
-1,030
23,950
1.5-Zi.Whg
58
2
1.OG
2,140
25,690
-720
-1,030
23,950
3.5-Zi.Whg
87
2
EG
2,680
32,220
-900
-1,290
30,030
3.5-Zi.Whg
87
2
1.OG
2,680
32,220
-900
-1,290
30,030
4.5-Zi.Whg
97
3
EG
2,340
28,060
-790
-1,120
26,150
4.5-Zi.Whg
97
3
1.OG
2,340
28,060
-790
-1,120
26,150
1.5-Zi.Whg
40
3
EG
1,470
17,580
-490
-700
16,390
1.5-Zi.Whg
40
3
1.OG
1,470
17,580
-490
-700
16,390
4.5-Zi.Whg
99
3
EG
2,390
28,700
-800
-1,150
26,750
4.5-Zi.Whg
99
3
1.OG
2,390
28,700
-800
-1,150
26,750
1.5-Zi.Whg
40
3
EG
1,470
17,580
-490
-700
16,390
1.5-Zi.Whg
40
3
1.OG
1,470
17,580
-490
-700
16,390
Parkplatz
nan
N/A
1.UG
2,400
28,800
-810
-1,150
26,840
Total
–
–
52,920
634,680
-17,750
-25,370
591,560
Kosten
Die Kosten des Referenzdesigns werden mit einer elementbasierten Kostenberechnung ermittelt. Ergänzend werden die Kosten für Untergeschoss, Planung, Generalunternehmer, Landschaft sowie die allgemeine MEP separat ausgewiesen.
eBKP-H
Beschreibung
Betrag (CHF)
Anteil
B00
Vorbereitung
-818,100 CHF
5.7%
C02
Wandkonstruktion
-388,900 CHF
2.7%
C03
Stützenkonstruktion
-86,300 CHF
0.6%
C04
Deckenkonstruktion, Dachkonstruktion
-1,125,500 CHF
7.8%
C05
Ergänzende Leistung zu Konstruktion
-48,000 CHF
0.3%
CDE
Untergeschoss
-2,181,300 CHF
15.1%
D00
MEP_General
-767,300 CHF
5.3%
D01
Technik Gebäude
-470,400 CHF
3.3%
D05
Wärmetechnische Anlage
-119,700 CHF
0.8%
D07
Lufttechnische Anlage
-55,800 CHF
0.4%
D08
Wassertechnische Anlage
-453,600 CHF
3.1%
D09
Abwassertechnische Anlage
-57,600 CHF
0.4%
D12
Beförderungsanlage
-90,000 CHF
0.6%
E02
Äussere Wandbekleidung über Terrain
-646,600 CHF
4.5%
E03
Element in Aussenwand
-390,000 CHF
2.7%
F01
Dachhaut
-437,400 CHF
3.0%
F02
Element zu Dach
-30,000 CHF
0.2%
G01
Trennwand, Innentür, Innentor
-405,900 CHF
2.8%
G02
Bodenbelag
-509,300 CHF
3.5%
G03
Wandbekleidung
-99,300 CHF
0.7%
G04
Deckenbekleidung
-700 CHF
0.0%
G05
Einbauten, Schutzeinrichtung zu Ausbau
-641,700 CHF
4.4%
G06
Ergänzende Leistung zu Ausbau
-61,300 CHF
0.4%
I00
Landschaft
-572,000 CHF
4.0%
V00
TU Kosten
-1,418,300 CHF
9.8%
V00
Planung
-1,379,900 CHF
9.6%
W00
Nebenkosten
-157,500 CHF
1.1%
Z00
MwSt
-1,020,200 CHF
7.1%
Herstellungskosten
-14,433 TCHF
100%
Projektablauf
Gesamtübersicht der Projektphasen von der Machbarkeitsstudie bis zur Übergabe. Das Diagramm ist interaktiv – Balken anklicken oder zoomen für Details.
Terminplan (Bauprogramm)
Detaillierter Zeitplan der geplanten Realisierung. Das Diagramm ist interaktiv – Balken anklicken oder zoomen für Details.
Discounted Cash Flow
1.24x
Erträge / Kosten
3.31 Mio. CHF
Net Present Value (NPV)
35.7 %
IRR (annualisiert)
26.5 %
Return on Invested Capital
Alle Beträge in TCHF (Tausend CHF). Abzinsungssatz: gemäss Projektparameter.
Beschreibung
2026-Q3
2026-Q4
2027-Q1
2027-Q2
2027-Q3
2027-Q4
2028-Q1
2028-Q2
2028-Q3
2028-Q4
2029-Q1
2029-Q2
2029-Q3
Kosten
Bau
-
-
-
-373
-
-373
-
-
-1,560
-3,602
-2,897
-3,602
-1,560
Machbarkeit
-75
-
-
-
-
-
-
-
-
-
-
-
-
Vorbereitung
-
-
-
-
-
-
-
-1,560
-
-
-
-
-
Gesamtkosten
-75
-
-
-373
-
-373
-
-1,560
-1,560
-3,602
-2,897
-3,602
-1,560
Erlöse
Climate_Certificates
-
-
-
-
-
-
-
-
-
-
-
-
41
Sonstiger Erlös
-
-
-
-
-
-
-
-
-
-
-
-
19,280
Gesamterlöse
-
-
-
-
-
-
-
-
-
-
-
-
19,321
Netto Cash Flow
-75
-
-
-373
-
-373
-
-1,560
-1,560
-3,602
-2,897
-3,602
17,761
Diskontierter Cash Flow
-75
-
-
-367
-
-364
-
-1,507
-1,500
-3,445
-2,757
-3,411
16,736
Kum. Cash Flow
-75
-75
-75
-447
-447
-820
-820
-2,381
-3,941
-7,543
-10,439
-14,042
3,719
Kum. disk. Cash Flow
-75
-75
-75
-442
-442
-806
-806
-2,313
-3,812
-7,258
-10,014
-13,425
3,311
Kennzahlen – Beste Wohnungsgrösse
Flächen
GF Tot.
4,017 m²
GF unterird.
1,722 m²
GF oberird.
2,295 m²
Nettofläche
1,669 m²
Effizienz
72.71 %
Vol. oberird.
7,148 m³
Baumassenreserve
160 m³
Programm
Total Wohnungen
32
1.5-Zi. Wohnungen
24
48 m²
2.5-Zi. Wohnungen
8
63 m²
3.5-Zi. Wohnungen
0
–
4.5-Zi. Wohnungen
0
–
5.5-Zi. Wohnungen
0
–
Kosten
Projektkosten
-16,823 TCHF
Kosten/m² GF oberird.
4,914 CHF/m²
Kosten/m² Nettofläche
6,758 CHF/m²
Erträge
Total Erträge
771,600 CHF/a
Ertrag/m² NF
461 CHF/(m²·a)
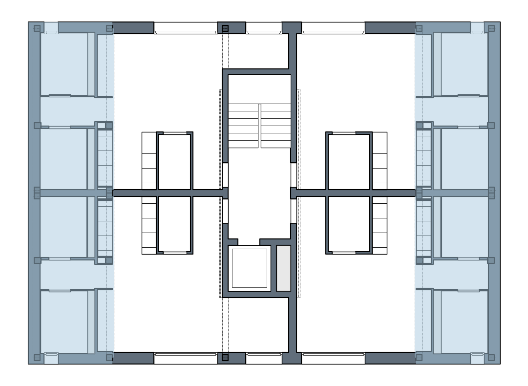
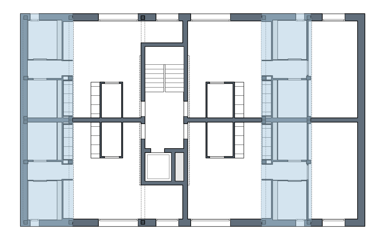
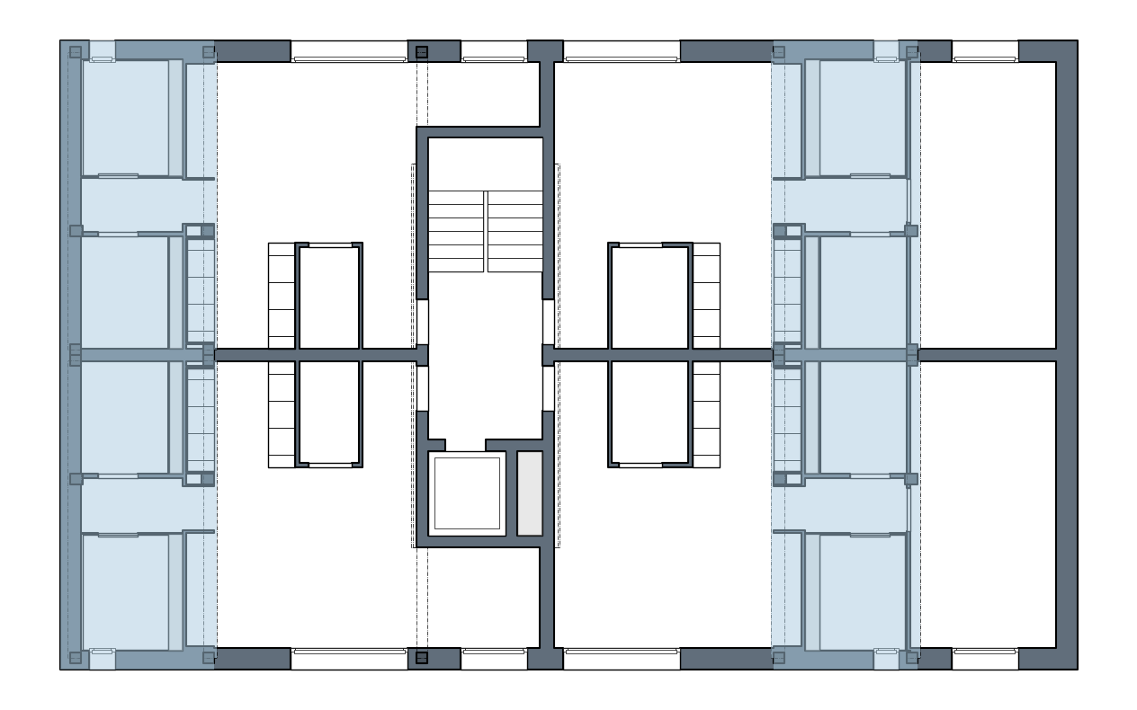
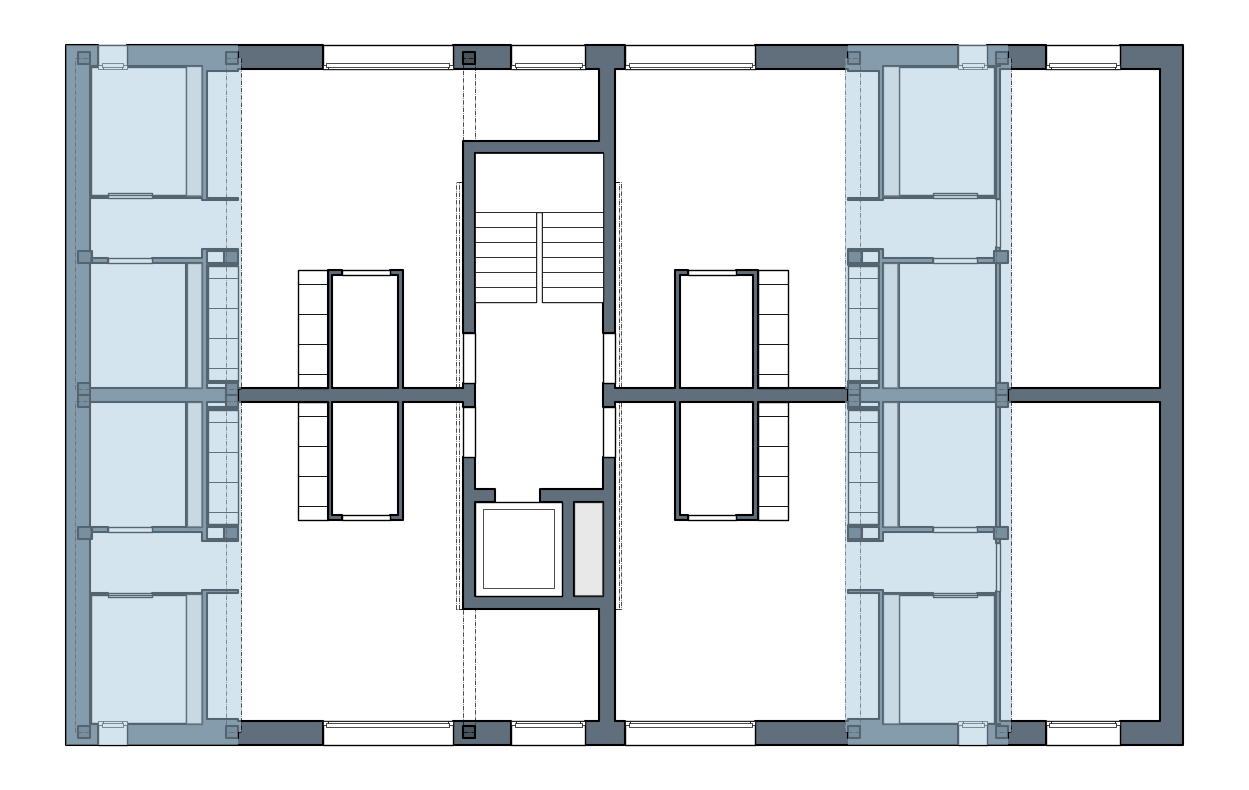
Grundriss / Regelgeschoss – Beste Wohnungsgrösse
Kern 0 – Regelgeschoss
Kern 1 – Regelgeschoss
Kern 2 – Regelgeschoss
Kern 3 – Regelgeschoss
Wohnungsspiegel
Typ
Nettofläche (m²)
Kern
Geschoss
Monatsmiete (CHF)
Jahresmiete (CHF)
Leerstandsverl. (CHF)
Betriebskosten (CHF)
Nettoertrag (CHF)
1.5-Zi.Whg
47
1
EG
1,730
20,810
-580
-830
19,390
1.5-Zi.Whg
47
1
1.OG
1,730
20,810
-580
-830
19,390
1.5-Zi.Whg
47
1
EG
1,730
20,750
-580
-830
19,340
1.5-Zi.Whg
47
1
1.OG
1,730
20,750
-580
-830
19,340
1.5-Zi.Whg
49
1
EG
1,820
21,790
-610
-870
20,310
1.5-Zi.Whg
49
1
1.OG
1,820
21,790
-610
-870
20,310
1.5-Zi.Whg
47
1
EG
1,730
20,750
-580
-830
19,340
1.5-Zi.Whg
47
1
1.OG
1,730
20,750
-580
-830
19,340
1.5-Zi.Whg
48
2
EG
1,790
21,540
-600
-860
20,070
1.5-Zi.Whg
48
2
1.OG
1,790
21,540
-600
-860
20,070
2.5-Zi.Whg
65
2
EG
2,310
27,660
-770
-1,110
25,780
2.5-Zi.Whg
65
2
1.OG
2,310
27,660
-770
-1,110
25,780
1.5-Zi.Whg
51
2
EG
1,880
22,520
-630
-900
20,990
1.5-Zi.Whg
51
2
1.OG
1,880
22,520
-630
-900
20,990
2.5-Zi.Whg
65
2
EG
2,310
27,660
-770
-1,110
25,780
2.5-Zi.Whg
65
2
1.OG
2,310
27,660
-770
-1,110
25,780
1.5-Zi.Whg
42
3
EG
1,550
18,620
-520
-740
17,350
1.5-Zi.Whg
42
3
1.OG
1,550
18,620
-520
-740
17,350
2.5-Zi.Whg
62
3
EG
2,210
26,490
-740
-1,060
24,690
2.5-Zi.Whg
62
3
1.OG
2,210
26,490
-740
-1,060
24,690
1.5-Zi.Whg
44
3
EG
1,630
19,600
-550
-780
18,270
1.5-Zi.Whg
44
3
1.OG
1,630
19,600
-550
-780
18,270
2.5-Zi.Whg
62
3
EG
2,210
26,490
-740
-1,060
24,690
2.5-Zi.Whg
62
3
1.OG
2,210
26,490
-740
-1,060
24,690
1.5-Zi.Whg
52
4
EG
1,910
22,970
-640
-920
21,410
1.5-Zi.Whg
52
4
1.OG
1,910
22,970
-640
-920
21,410
1.5-Zi.Whg
51
4
EG
1,870
22,500
-630
-900
20,970
1.5-Zi.Whg
51
4
1.OG
1,870
22,500
-630
-900
20,970
1.5-Zi.Whg
54
4
EG
2,000
23,950
-670
-960
22,320
1.5-Zi.Whg
54
4
1.OG
2,000
23,950
-670
-960
22,320
1.5-Zi.Whg
51
4
EG
1,870
22,500
-630
-900
20,970
1.5-Zi.Whg
51
4
1.OG
1,870
22,500
-630
-900
20,970
Parkplatz
nan
N/A
1.UG
3,200
38,400
-1,080
-1,540
35,790
Total
–
–
64,300
771,600
-21,560
-30,860
719,130
Kosten
Die Kosten des Referenzdesigns werden mit einer elementbasierten Kostenberechnung ermittelt. Ergänzend werden die Kosten für Untergeschoss, Planung, Generalunternehmer, Landschaft sowie die allgemeine MEP separat ausgewiesen.
eBKP-H
Beschreibung
Betrag (CHF)
Anteil
B00
Vorbereitung
-929,800 CHF
5.5%
C02
Wandkonstruktion
-460,300 CHF
2.7%
C03
Stützenkonstruktion
-115,100 CHF
0.7%
C04
Deckenkonstruktion, Dachkonstruktion
-1,226,600 CHF
7.3%
C05
Ergänzende Leistung zu Konstruktion
-49,600 CHF
0.3%
CDE
Untergeschoss
-2,855,400 CHF
17.0%
D00
MEP_General
-751,300 CHF
4.5%
D01
Technik Gebäude
-627,200 CHF
3.7%
D05
Wärmetechnische Anlage
-143,300 CHF
0.9%
D07
Lufttechnische Anlage
-74,400 CHF
0.4%
D08
Wassertechnische Anlage
-476,800 CHF
2.8%
D09
Abwassertechnische Anlage
-76,800 CHF
0.5%
D12
Beförderungsanlage
-120,000 CHF
0.7%
E02
Äussere Wandbekleidung über Terrain
-730,100 CHF
4.3%
E03
Element in Aussenwand
-475,900 CHF
2.8%
F01
Dachhaut
-484,900 CHF
2.9%
F02
Element zu Dach
-40,000 CHF
0.2%
G01
Trennwand, Innentür, Innentor
-438,900 CHF
2.6%
G02
Bodenbelag
-510,000 CHF
3.0%
G03
Wandbekleidung
-112,600 CHF
0.7%
G04
Deckenbekleidung
-900 CHF
0.0%
G05
Einbauten, Schutzeinrichtung zu Ausbau
-846,200 CHF
5.0%
G06
Ergänzende Leistung zu Ausbau
-81,700 CHF
0.5%
I00
Landschaft
-564,000 CHF
3.4%
V00
TU Kosten
-1,653,000 CHF
9.8%
V00
Planung
-1,608,200 CHF
9.6%
W00
Nebenkosten
-179,000 CHF
1.1%
Z00
MwSt
-1,190,900 CHF
7.1%
Herstellungskosten
-16,823 TCHF
100%
Projektablauf
Gesamtübersicht der Projektphasen von der Machbarkeitsstudie bis zur Übergabe. Das Diagramm ist interaktiv – Balken anklicken oder zoomen für Details.
Terminplan (Bauprogramm)
Detaillierter Zeitplan der geplanten Realisierung. Das Diagramm ist interaktiv – Balken anklicken oder zoomen für Details.
Discounted Cash Flow
1.29x
Erträge / Kosten
4.82 Mio. CHF
Net Present Value (NPV)
55.7 %
IRR (annualisiert)
43.5 %
Return on Invested Capital
Alle Beträge in TCHF (Tausend CHF). Abzinsungssatz: gemäss Projektparameter.
Beschreibung
2026-Q3
2026-Q4
2027-Q1
2027-Q2
2027-Q3
2027-Q4
2028-Q1
2028-Q2
2028-Q3
2028-Q4
2029-Q1
2029-Q2
2029-Q3
Kosten
Bau
-
-
-
-435
-
-435
-
-
-1,819
-
-4,199
-3,376
-6,017
Machbarkeit
-87
-
-
-
-
-
-
-
-
-
-
-
-
Vorbereitung
-
-
-
-
-
-
-
-1,819
-
-
-
-
-
Gesamtkosten
-87
-
-
-435
-
-435
-
-1,819
-1,819
-
-4,199
-3,376
-6,017
Erlöse
Climate_Certificates
-
-
-
-
-
-
-
-
-
-
-
-
43
Sonstiger Erlös
-
-
-
-
-
-
-
-
-
-
-
-
23,438
Gesamterlöse
-
-
-
-
-
-
-
-
-
-
-
-
23,480
Netto Cash Flow
-87
-
-
-435
-
-435
-
-1,819
-1,819
-
-4,199
-3,376
17,463
Diskontierter Cash Flow
-87
-
-
-428
-
-424
-
-1,757
-1,748
-
-3,996
-3,197
16,456
Kum. Cash Flow
-87
-87
-87
-522
-522
-956
-956
-2,775
-4,593
-4,593
-8,792
-12,168
5,295
Kum. disk. Cash Flow
-87
-87
-87
-515
-515
-939
-939
-2,696
-4,444
-4,444
-8,440
-11,637
4,819
Kennzahlen – Beste Topografie
Flächen
GF Tot.
4,055 m²
GF unterird.
1,722 m²
GF oberird.
2,333 m²
Nettofläche
1,702 m²
Effizienz
72.96 %
Vol. oberird.
7,267 m³
Baumassenreserve
41 m³
Programm
Total Wohnungen
32
1.5-Zi. Wohnungen
20
48 m²
2.5-Zi. Wohnungen
12
61 m²
3.5-Zi. Wohnungen
0
–
4.5-Zi. Wohnungen
0
–
5.5-Zi. Wohnungen
0
–
Kosten
Projektkosten
-16,902 TCHF
Kosten/m² GF oberird.
4,860 CHF/m²
Kosten/m² Nettofläche
6,662 CHF/m²
Erträge
Total Erträge
782,760 CHF/a
Ertrag/m² NF
460 CHF/(m²·a)
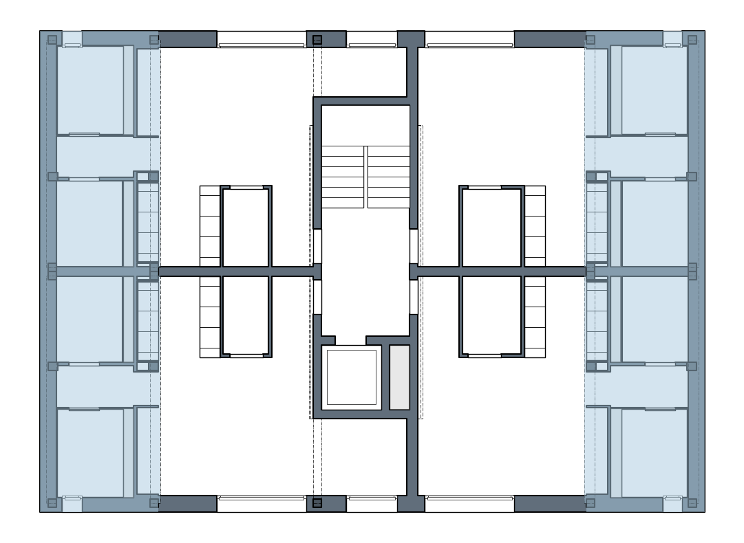
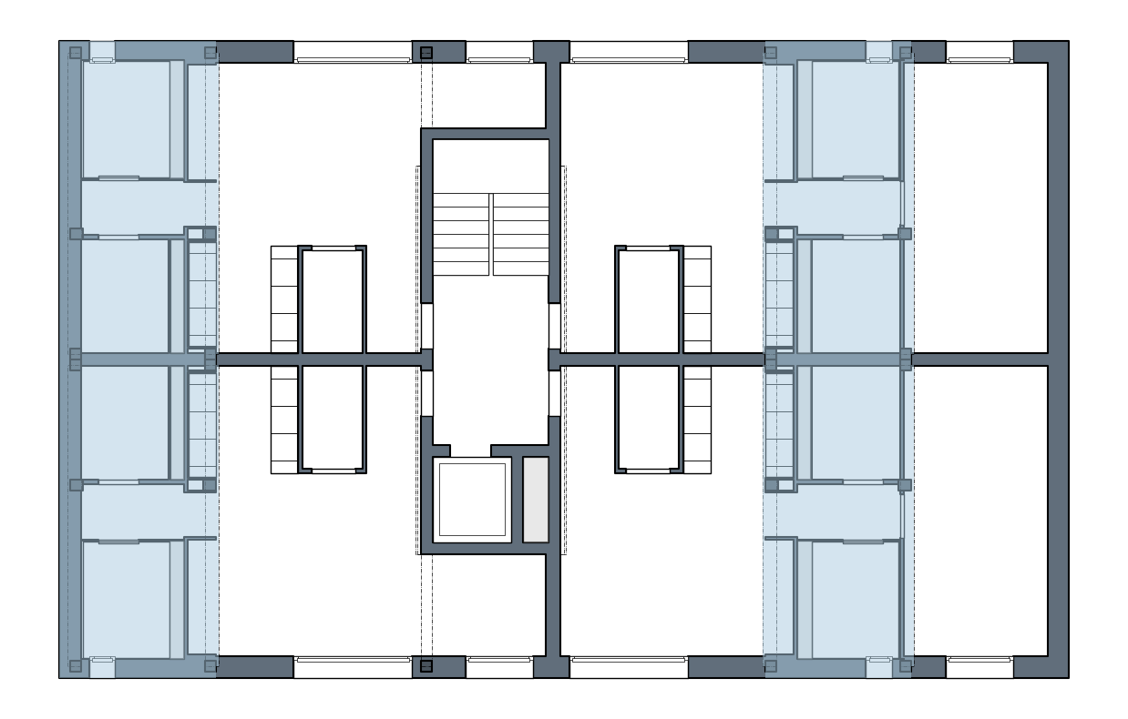
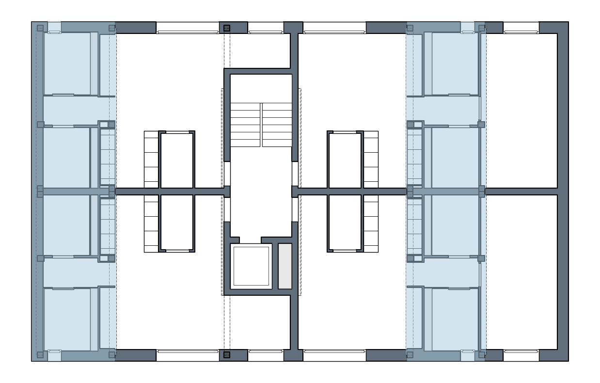
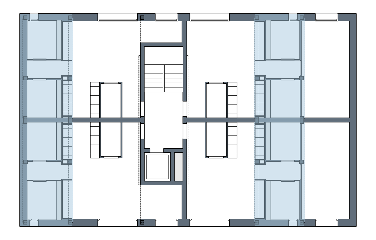
Grundriss / Regelgeschoss – Beste Topografie
Kern 0 – Regelgeschoss
Kern 1 – Regelgeschoss
Kern 2 – Regelgeschoss
Kern 3 – Regelgeschoss
Wohnungsspiegel
Typ
Nettofläche (m²)
Kern
Geschoss
Monatsmiete (CHF)
Jahresmiete (CHF)
Leerstandsverl. (CHF)
Betriebskosten (CHF)
Nettoertrag (CHF)
1.5-Zi.Whg
51
1
EG
1,870
22,480
-630
-900
20,950
1.5-Zi.Whg
51
1
1.OG
1,870
22,480
-630
-900
20,950
1.5-Zi.Whg
49
1
EG
1,830
21,940
-610
-880
20,440
1.5-Zi.Whg
49
1
1.OG
1,830
21,940
-610
-880
20,440
1.5-Zi.Whg
53
1
EG
1,950
23,460
-660
-940
21,860
1.5-Zi.Whg
53
1
1.OG
1,950
23,460
-660
-940
21,860
1.5-Zi.Whg
49
1
EG
1,830
21,940
-610
-880
20,440
1.5-Zi.Whg
49
1
1.OG
1,830
21,940
-610
-880
20,440
1.5-Zi.Whg
42
2
EG
1,550
18,650
-520
-750
17,380
1.5-Zi.Whg
42
2
1.OG
1,550
18,650
-520
-750
17,380
2.5-Zi.Whg
62
2
EG
2,210
26,510
-740
-1,060
24,700
2.5-Zi.Whg
62
2
1.OG
2,210
26,510
-740
-1,060
24,700
1.5-Zi.Whg
44
2
EG
1,640
19,630
-550
-790
18,300
1.5-Zi.Whg
44
2
1.OG
1,640
19,630
-550
-790
18,300
2.5-Zi.Whg
62
2
EG
2,210
26,510
-740
-1,060
24,700
2.5-Zi.Whg
62
2
1.OG
2,210
26,510
-740
-1,060
24,700
1.5-Zi.Whg
49
3
EG
1,830
21,990
-620
-880
20,500
1.5-Zi.Whg
49
3
1.OG
1,830
21,990
-620
-880
20,500
1.5-Zi.Whg
47
3
EG
1,750
20,970
-590
-840
19,540
1.5-Zi.Whg
47
3
1.OG
1,750
20,970
-590
-840
19,540
1.5-Zi.Whg
52
3
EG
1,910
22,980
-640
-920
21,410
1.5-Zi.Whg
52
3
1.OG
1,910
22,980
-640
-920
21,410
1.5-Zi.Whg
47
3
EG
1,750
20,970
-590
-840
19,540
1.5-Zi.Whg
47
3
1.OG
1,750
20,970
-590
-840
19,540
2.5-Zi.Whg
61
4
EG
2,160
25,950
-730
-1,040
24,190
2.5-Zi.Whg
61
4
1.OG
2,160
25,950
-730
-1,040
24,190
2.5-Zi.Whg
60
4
EG
2,140
25,650
-720
-1,030
23,900
2.5-Zi.Whg
60
4
1.OG
2,140
25,650
-720
-1,030
23,900
2.5-Zi.Whg
63
4
EG
2,240
26,900
-750
-1,080
25,070
2.5-Zi.Whg
63
4
1.OG
2,240
26,900
-750
-1,080
25,070
2.5-Zi.Whg
60
4
EG
2,140
25,650
-720
-1,030
23,900
2.5-Zi.Whg
60
4
1.OG
2,140
25,650
-720
-1,030
23,900
Parkplatz
nan
N/A
1.UG
3,200
38,400
-1,080
-1,540
35,790
Total
–
–
65,220
782,760
-21,920
-31,380
729,430
Kosten
Die Kosten des Referenzdesigns werden mit einer elementbasierten Kostenberechnung ermittelt. Ergänzend werden die Kosten für Untergeschoss, Planung, Generalunternehmer, Landschaft sowie die allgemeine MEP separat ausgewiesen.
eBKP-H
Beschreibung
Betrag (CHF)
Anteil
B00
Vorbereitung
-938,600 CHF
5.6%
C02
Wandkonstruktion
-463,400 CHF
2.7%
C03
Stützenkonstruktion
-115,100 CHF
0.7%
C04
Deckenkonstruktion, Dachkonstruktion
-1,208,300 CHF
7.1%
C05
Ergänzende Leistung zu Konstruktion
-50,500 CHF
0.3%
CDE
Untergeschoss
-2,855,400 CHF
16.9%
D00
MEP_General
-766,400 CHF
4.5%
D01
Technik Gebäude
-627,200 CHF
3.7%
D05
Wärmetechnische Anlage
-144,300 CHF
0.9%
D07
Lufttechnische Anlage
-74,400 CHF
0.4%
D08
Wassertechnische Anlage
-476,800 CHF
2.8%
D09
Abwassertechnische Anlage
-76,800 CHF
0.5%
D12
Beförderungsanlage
-120,000 CHF
0.7%
E02
Äussere Wandbekleidung über Terrain
-733,200 CHF
4.3%
E03
Element in Aussenwand
-493,300 CHF
2.9%
F01
Dachhaut
-491,000 CHF
2.9%
F02
Element zu Dach
-40,000 CHF
0.2%
G01
Trennwand, Innentür, Innentor
-448,000 CHF
2.7%
G02
Bodenbelag
-520,200 CHF
3.1%
G03
Wandbekleidung
-115,000 CHF
0.7%
G04
Deckenbekleidung
-900 CHF
0.0%
G05
Einbauten, Schutzeinrichtung zu Ausbau
-848,200 CHF
5.0%
G06
Ergänzende Leistung zu Ausbau
-81,700 CHF
0.5%
I00
Landschaft
-560,000 CHF
3.3%
V00
TU Kosten
-1,660,900 CHF
9.8%
V00
Planung
-1,615,800 CHF
9.6%
W00
Nebenkosten
-180,700 CHF
1.1%
Z00
MwSt
-1,196,200 CHF
7.1%
Herstellungskosten
-16,902 TCHF
100%
Projektablauf
Gesamtübersicht der Projektphasen von der Machbarkeitsstudie bis zur Übergabe. Das Diagramm ist interaktiv – Balken anklicken oder zoomen für Details.
Terminplan (Bauprogramm)
Detaillierter Zeitplan der geplanten Realisierung. Das Diagramm ist interaktiv – Balken anklicken oder zoomen für Details.
Discounted Cash Flow
1.30x
Erträge / Kosten
5.05 Mio. CHF
Net Present Value (NPV)
57.9 %
IRR (annualisiert)
45.3 %
Return on Invested Capital
Alle Beträge in TCHF (Tausend CHF). Abzinsungssatz: gemäss Projektparameter.
Die Kosten des Referenzdesigns werden mit einer elementbasierten Kostenberechnung ermittelt. Ergänzend werden die Kosten für Untergeschoss, Planung, Generalunternehmer, Landschaft sowie die allgemeine MEP separat ausgewiesen.
eBKP-H
Beschreibung
Betrag (CHF)
Anteil
B00
Vorbereitung
-466,300 CHF
5.2%
C02
Wandkonstruktion
-230,400 CHF
2.6%
C03
Stützenkonstruktion
-57,500 CHF
0.6%
C04
Deckenkonstruktion, Dachkonstruktion
-614,800 CHF
6.9%
C05
Ergänzende Leistung zu Konstruktion
-25,000 CHF
0.3%
CDE
Untergeschoss
-1,427,700 CHF
15.9%
D00
MEP_General
-378,200 CHF
4.2%
D01
Technik Gebäude
-313,600 CHF
3.5%
D05
Wärmetechnische Anlage
-71,800 CHF
0.8%
D07
Lufttechnische Anlage
-37,200 CHF
0.4%
D08
Wassertechnische Anlage
-238,400 CHF
2.7%
D09
Abwassertechnische Anlage
-38,400 CHF
0.4%
D12
Beförderungsanlage
-60,000 CHF
0.7%
E02
Äussere Wandbekleidung über Terrain
-366,300 CHF
4.1%
E03
Element in Aussenwand
-237,900 CHF
2.7%
F01
Dachhaut
-243,300 CHF
2.7%
F02
Element zu Dach
-20,000 CHF
0.2%
G01
Trennwand, Innentür, Innentor
-219,800 CHF
2.4%
G02
Bodenbelag
-256,000 CHF
2.9%
G03
Wandbekleidung
-56,200 CHF
0.6%
G04
Deckenbekleidung
-500 CHF
0.0%
G05
Einbauten, Schutzeinrichtung zu Ausbau
-423,100 CHF
4.7%
G06
Ergänzende Leistung zu Ausbau
-40,900 CHF
0.5%
I00
Landschaft
-683,300 CHF
7.6%
V00
TU Kosten
-881,400 CHF
9.8%
V00
Planung
-857,500 CHF
9.6%
W00
Nebenkosten
-89,800 CHF
1.0%
Z00
MwSt
-637,400 CHF
7.1%
Herstellungskosten
-8,973 TCHF
100%
Projektablauf
Gesamtübersicht der Projektphasen von der Machbarkeitsstudie bis zur Übergabe. Das Diagramm ist interaktiv – Balken anklicken oder zoomen für Details.
Terminplan (Bauprogramm)
Detaillierter Zeitplan der geplanten Realisierung. Das Diagramm ist interaktiv – Balken anklicken oder zoomen für Details.
Discounted Cash Flow
1.22x
Erträge / Kosten
1.94 Mio. CHF
Net Present Value (NPV)
61.3 %
IRR (annualisiert)
32.5 %
Return on Invested Capital
Alle Beträge in TCHF (Tausend CHF). Abzinsungssatz: gemäss Projektparameter.
Beschreibung
2026-Q3
2026-Q4
2027-Q1
2027-Q2
2027-Q3
2027-Q4
2028-Q1
2028-Q2
2028-Q3
2028-Q4
2029-Q1
Kosten
Bau
-
-
-
-232
-
-232
-
-
-3,209
-1,801
-3,209
Machbarkeit
-46
-
-
-
-
-
-
-
-
-
-
Vorbereitung
-
-
-
-
-
-
-
-970
-
-
-
Gesamtkosten
-46
-
-
-232
-
-232
-
-970
-3,209
-1,801
-3,209
Erlöse
Climate_Certificates
-
-
-
-
-
-
-
-
-
-
22
Sonstiger Erlös
-
-
-
-
-
-
-
-
-
-
11,787
Gesamterlöse
-
-
-
-
-
-
-
-
-
-
11,808
Netto Cash Flow
-46
-
-
-232
-
-232
-
-970
-3,209
-1,801
8,599
Diskontierter Cash Flow
-46
-
-
-228
-
-226
-
-937
-3,085
-1,722
8,184
Kum. Cash Flow
-46
-46
-46
-278
-278
-510
-510
-1,480
-4,689
-6,490
2,109
Kum. disk. Cash Flow
-46
-46
-46
-275
-275
-501
-501
-1,438
-4,522
-6,245
1,939
4. Nachhaltigkeit
Das Projekt wird in Holzbauweise realisiert. Durch den Einsatz von Holz als nachwachsendem Rohstoff leistet das Projekt einen wesentlichen Beitrag zur CO₂-Reduktion. Die folgende Tabelle zeigt die geschätzten Klimazertifikate und deren Marktwert.
798.8 m³
Anrechenbares Holzvolumen
639.0 t CO₂-Eq.
Gespeichertes CO² (Brutto)
447.3 t CO₂
CO²-Speicherung (Netto)
222.1 t CO₂-Eq.
Co-Benefits (Emissionsreduktion)
Zertifikattyp
Anzahl Zertifikate
Realistischer Preis / Zertifikat
Gesamtwert tief
Gesamtwert realistisch
Gesamtwert hoch
Co-Benefits
133
50 CHF
2,660 CHF
6,650 CHF
9,975 CHF
Carbon Removal 75
335
100 CHF
20,100 CHF
33,500 CHF
45,225 CHF
Total
–
–
22,760 CHF
40,150 CHF
55,200 CHF
Gemeinsam mit unserem Partner Timber Finance machen wir die Klimaleistung von Holzbauten messbar, verifizierbar und finanziell nutzbar. Timber Finance prüft und bewertet Ihre Holzbauprojekte hinsichtlich ihrer CO₂-Wirkung, berechnet die gespeicherten und eingesparten Emissionen und entwickelt komplette CO₂-Projekte – von der Verifizierung und Registrierung bis zur Ausstellung und Vermarktung der CO₂-Zertifikate. Über den gesamten Lebenszyklus des Gebäudes übernimmt Timber Finance das CO₂-Management, weist die nachhaltige Holzbeschaffung nach und dokumentiert relevante SDG-Beiträge für ESG- und Klimaberichterstattung. So werden aus Holzbauten zusätzliche Erlöse oder anrechenbare Klimaleistungen für Ihre eigene Klimabilanz – ohne zusätzlichen Aufwand für Ihr Projektteam.
Warum Timber Finance als Partner?
Zusätzliche Erlöse durch den Verkauf von CO₂-Zertifikaten
Pionier für CO₂-Quantifizierung und Verifizierung im Gebäude
End-to-end-Service ohne Mehraufwand für interne Teams
Reduzierung der zusätzlichen Baukosten, aber klar ausgewiesener
Verifizierte, ICROA-konforme CO₂-Zertifikate
Maximaler Wert aus dem im Holz gespeicherten CO₂
Verwendungszweck der CO₂-Zertifikate
Vergütungsmodell
Klimainvestoren kaufen Zertifikate zur Kompensation Ihrer Emissionen:
Zusätzlicher Erlös
Erhöhung des Immobilienwerts
Ausgleich der Mehrkosten des Holzbaus
Insetting (Selbstanrechnung)
Bauherrschaften behalten die Carbon Credits selbst als Asset:
Kompensation der eigenen Betriebsemissionen
Aufbau eines eigenen Carbon Removal Portfolio
Aufbewahrung für späteren Verkauf
Teilnahmekriterien
Alle Gebäudekategorien ausser Einfamilienhäuser und landwirtschaftliche Gebäude
Nur das primäre Tragwerk
Holz muss nachweisbar aus nachhaltigen Wäldern stammen
Prozess
Eingabe der Teilnahmeerklärung und des Datenblatts
Prüfung des Projekts und Bestätigung durch Timber Finance
Aufschaltung der Online-Zugänge um Daten hochzuladen
Berechnung der Klimaperformance und CO₂-Quantifizierung
Prüfung und Verifizierung durch eine unabhängige Drittpartei
Registrierung der Klimaleistung bei einem ICROA / EU-Standard
Vermarktung oder Übertragung der Zertifikate - je nach Kundenwunsch
Kosten für Teilnahme: CHF 4'000 exkl. MwSt. oder EUR 4.300 exkl. MwSt.
Die Zertifikatswerte basieren auf Marktpreisschätzungen der Timber Carbon und können von den tatsächlichen Erlösen zum Zeitpunkt der Realisierung abweichen.
5. Massivbauweise – Vergleich
Modulare Bauweise
18.14 Mio. CHF
Total Cost
36 Monate
Project Duration
5.30 Mio. CHF
NPV
60.8 %
IRR
Konventionelle Bauweise
17.49 Mio. CHF
Total Cost
39 Monate
Project Duration
5.78 Mio. CHF
NPV
55.7 %
IRR
Gegenüberstellung der Baukosten nach eBKP-H3 für Holz- und Massivbauweise. Die Kostenermittlung basiert auf dem Bauteilkatalog nach Housing Products. Die Differenz zeigt die Mehr- (+) bzw. Minder-Kosten (-) der Massivbauweise gegenüber der Holzbauweise.
eBKP-H3
Beschreibung
Holzbauweise (CHF)
Massivbauweise (CHF)
Differenz (CHF)
C02
Wandkonstruktion
455,060
171,984
-283,076
C03
Stützenkonstruktion
115,087
120,870
+5,783
C04
Deckenkonstruktion, Dachkonstruktion
1,196,827
775,511
-421,316
C05
Ergänzende Leistung zu Konstruktion
50,301
0
-50,301
D01
Technik Gebäude
627,196
627,196
+0
D05
Wärmetechnische Anlage
144,384
144,384
+0
D07
Lufttechnische Anlage
74,440
74,440
+0
D08
Wassertechnische Anlage
476,800
468,852
-7,948
D09
Abwassertechnische Anlage
76,800
76,800
+0
D12
Beförderungsanlage
120,000
120,000
+0
E02
Äussere Wandbekleidung über Terrain
729,371
507,666
-221,705
E03
Element in Aussenwand
475,864
475,864
+0
F01
Dachhaut
488,550
488,550
-0
F02
Element zu Dach
40,000
40,000
+0
G01
Trennwand, Innentür, Innentor
414,309
641,216
+226,907
G02
Bodenbelag
521,202
366,463
-154,739
G03
Wandbekleidung
106,696
92,234
-14,461
G04
Deckenbekleidung
941
941
+0
G05
Einbauten, Schutzeinrichtung zu Ausbau
843,710
843,710
+0
G06
Ergänzende Leistung zu Ausbau
81,720
81,720
+0
—
Nebenkosten
180,337
180,337
+0
—
Untergeschoss
2,855,356
2,855,356
+0
—
Landschaft
560,869
560,869
+0
—
MEP Allgemein
767,124
767,124
+0
—
Vorbereitung
936,781
936,781
+0
—
Planung
1,604,164
1,712,830
+108,666
—
TU Kosten (Leistung + Risiko)
1,648,865
1,902,455
+253,590
—
MwSt
1,187,134
1,141,887
-45,247
Gesamtinvestition (inkl. Planung, TU & MwSt)
16,779,887 CHF
16,176,039 CHF
-603,849 CHF
Kosten exkl. Grundstückserwerb, Entwicklung und Vermarktung.
6. Lageplan
Katasterplan (Bestand)
Bauzonenplan
ÖV-Erschliessung
Lärmbelastung (Strassenverkehr, Tag)
Topographie
Bebaubare Fläche
Points of Interest – Interaktive Karte
Öffentliche Einrichtungen und Infrastruktur im Einzugsgebiet (Mikrolage). Karte ist interaktiv – Punkte anklicken für Details.
7. Bestand
Bestehende Gebäude auf der Liegenschaft
Gebäude ID
Kategorie
Bauperiode
Vollgeschosse
Heizungsart
Anzahl Whg.
Fussabdruck (m²)
Bestehende Wohnungen auf der Liegenschaft
EGID
EWID
Stockwerk
Lage
Baujahr
Fläche (m²)
Zimmer
Nettomiete (CHF/Mt.)
8. Demographie
Veränderung in den letzten 5 Jahren
Demographie Mikrolage
Kategorie
Aktuell
Δ abs.
Δ %
Total
16,697
+600
+3.7 %
Männer
8,444
+334
+4.1 %
Frauen
8,366
+257
+3.2 %
0–19
5,171
+176
+3.5 %
20–34
4,012
-81
-2.0 %
35–49
5,138
+125
+2.5 %
50–64
5,015
+144
+3.0 %
65–79
3,742
+25
+0.7 %
80+
1,962
+463
+30.9 %
Haushalte Mikrolage
Kategorie
Aktuell
Δ abs.
Δ %
Total
7,213
+263
+3.8 %
1 Person
2,335
+168
+7.8 %
2 Personen
2,596
-39
-1.5 %
3 Personen
1,233
+41
+3.4 %
4 Personen
1,236
+11
+0.9 %
5 Personen
539
+57
+11.8 %
6+ Personen
266
+29
+12.2 %
Demographie Makrolage
Kategorie
Aktuell
Δ abs.
Δ %
Total
986,492
+48,466
+5.2 %
Männer
497,083
+25,653
+5.4 %
Frauen
493,933
+22,727
+4.8 %
0–19
257,830
+10,085
+4.1 %
20–34
263,463
+5,331
+2.1 %
35–49
288,242
+14,295
+5.2 %
50–64
242,204
+9,694
+4.2 %
65–79
169,967
+5,518
+3.4 %
80+
89,581
+9,305
+11.6 %
Haushalte Makrolage
Kategorie
Aktuell
Δ abs.
Δ %
Total
456,859
+21,450
+4.9 %
1 Person
184,219
+9,646
+5.5 %
2 Personen
147,519
+4,488
+3.1 %
3 Personen
64,782
+2,781
+4.5 %
4 Personen
59,740
+2,754
+4.8 %
5 Personen
25,475
+772
+3.1 %
6+ Personen
12,448
+588
+5.0 %
Einzugsgebiet Mikrolage
Bevölkerung in 30 min Gehdistanz: 16,697
Einzugsgebiet Mikrolage – bis 30 min Gehdistanz
Demographische Pyramide – Mikrolage
Altersgruppe
0–4
5–9
10–14
15–19
20–24
25–29
30–34
35–39
40–44
45–49
50–54
55–59
60–64
65–69
70–74
75–79
80–84
85–89
90+
Männer
605
649
724
658
671
690
683
798
838
924
875
907
763
616
632
583
503
286
124
Frauen
624
650
649
612
629
644
695
817
863
898
841
853
776
676
616
619
533
358
158
Haushaltstruktur – Mikrolage
Anzahl Haushalte in 30 min Gehdistanz: 7,213
Durchschnittliche Haushaltsgrösse: 2.31 Personen
Haushaltsgrösse
Anzahl
Anteil
Legende
1 Person
2,335
28 %
2 Personen
2,596
32 %
3 Personen
1,233
15 %
4 Personen
1,236
15 %
5 Personen
539
7 %
6+ Personen
266
3 %
Demographische Entwicklung – Mikrolage
Bevölkerungstrends – Mikrolage
Haushaltsstruktur Trends – Mikrolage
Bevölkerungstrends (indiziert) – Mikrolage
Haushaltsstruktur Trends (indiziert) – Mikrolage
Einzugsgebiet Makrolage
Bevölkerung in 30 min Fahrdistanz: 986,492
Einzugsgebiet Makrolage – bis 30 min Fahrdistanz
Demographische Pyramide – Makrolage
Altersgruppe
0–4
5–9
10–14
15–19
20–24
25–29
30–34
35–39
40–44
45–49
50–54
55–59
60–64
65–69
70–74
75–79
80–84
85–89
90+
Männer
32441
33742
33250
32402
35382
45960
53172
52225
49102
45123
42903
42607
37983
30494
26530
24230
19739
12381
6470
Frauen
31288
32154
31987
30566
33193
44506
51250
50363
47416
44013
41072
40396
37243
32040
29131
27542
23381
16589
11021
Haushaltstruktur – Makrolage
Anzahl Haushalte in 30 min Fahrdistanz: 456,859
Durchschnittliche Haushaltsgrösse: 2.16 Personen
Haushaltsgrösse
Anzahl
Anteil
Legende
1 Person
184,219
37 %
2 Personen
147,519
30 %
3 Personen
64,782
13 %
4 Personen
59,740
12 %
5 Personen
25,475
5 %
6+ Personen
12,448
3 %
Demographische Entwicklung – Makrolage
Bevölkerungstrends – Makrolage
Haushaltsstruktur Trends – Makrolage
Bevölkerungstrends (indiziert) – Makrolage
Haushaltsstruktur Trends (indiziert) – Makrolage
9. Bautätigkeit
Quelle: Bundesamt für Statistik (BFS) – Gebäude- und Wohnungsregister. Neubauwohnungen ab Baujahr 2010.
Gemeinde Bassersdorf
Neu erstellte Wohnungen ab 2010
Wert
1.5-Zi.
2.5-Zi.
3.5-Zi.
4.5-Zi.
5.5-Zi.
Anzahl
27.0
121.0
266.0
176.0
32.0
Durchschnittliche Fläche
47.15
66.18
91.84
115.28
161.34
Standardabweichung
35.47
11.51
18.19
16.64
39.24
Minimum
20.0
40.0
54.0
74.0
60.0
25% Quantil
39.0
60.0
80.0
102.0
136.25
Median
40.0
64.0
92.0
113.0
153.5
75% Quantil
46.0
72.0
98.0
124.0
187.0
Maximum
210.0
126.0
268.0
169.0
284.0
Verteilung der Wohnungsfläche nach Typ
Anzahl neu erstellte Wohnungen nach Typ
Kanton ZH
Neu erstellte Wohnungen ab 2010
Wert
1.5-Zi.
2.5-Zi.
3.5-Zi.
4.5-Zi.
5.5-Zi.
Anzahl
5279.0
26676.0
39930.0
35055.0
8187.0
Durchschnittliche Fläche
41.71
65.05
92.29
117.96
146.99
Standardabweichung
17.72
13.0
16.14
19.74
29.27
Minimum
11.0
25.0
30.0
9.0
60.0
25% Quantil
32.0
57.0
83.0
106.0
127.0
Median
39.0
63.0
90.0
114.0
142.0
75% Quantil
48.0
71.0
99.0
126.0
161.0
Maximum
352.0
489.0
935.0
1156.0
384.0
Verteilung der Wohnungsfläche nach Typ
Anzahl neu erstellte Wohnungen nach Typ
10. Markt
Miete – Mikrolage
Anzahl Inserate
204
Inserate / Wohnungsbestand
6.1%
Ø Preis / m²
331 CHF/m²/J
Ø Preis 1.5-Zi.-Whg
1,295 CHF/Mt.
Ø Preis 2.5-Zi.-Whg
1,793 CHF/Mt.
Ø Preis 3.5-Zi.-Whg
1,836 CHF/Mt.
Ø Preis 4.5-Zi.-Whg
2,344 CHF/Mt.
Ø Preis 5.5-Zi.-Whg
2,496 CHF/Mt.
Miete – Makrolage
Anzahl Inserate
214
Inserate / Wohnungsbestand
5.6%
Ø Preis / m²
328 CHF/m²/J
Ø Preis 1.5-Zi.-Whg
1,295 CHF/Mt.
Ø Preis 2.5-Zi.-Whg
1,795 CHF/Mt.
Ø Preis 3.5-Zi.-Whg
1,840 CHF/Mt.
Ø Preis 4.5-Zi.-Whg
2,360 CHF/Mt.
Ø Preis 5.5-Zi.-Whg
2,648 CHF/Mt.
Kauf – Mikrolage
Anzahl Inserate
55
Inserate / Wohnungsbestand
1.6%
Ø Preis / m²
10,242 CHF/m²
Ø Preis 1.5-Zi.-Whg
—
Ø Preis 2.5-Zi.-Whg
—
Ø Preis 3.5-Zi.-Whg
975 TCHF
Ø Preis 4.5-Zi.-Whg
1,279 TCHF
Ø Preis 5.5-Zi.-Whg
—
Kauf – Makrolage
Anzahl Inserate
58
Inserate / Wohnungsbestand
1.5%
Ø Preis / m²
10,176 CHF/m²
Ø Preis 1.5-Zi.-Whg
—
Ø Preis 2.5-Zi.-Whg
—
Ø Preis 3.5-Zi.-Whg
975 TCHF
Ø Preis 4.5-Zi.-Whg
1,279 TCHF
Ø Preis 5.5-Zi.-Whg
—
Mietpreise – Mikrolage
Anzahl Inserate im Einzugsgebiet: 259
Quantilsverteilung der Mietpreise (CHF/Monat) – Mikrolage
Typ
Min.
10%
20%
30%
40%
Median
60%
70%
80%
90%
Max.
1.5-Zi. Whg
217 CHF/m²
253 CHF/m²
294 CHF/m²
316 CHF/m²
321 CHF/m²
344 CHF/m²
413 CHF/m²
430 CHF/m²
444 CHF/m²
467 CHF/m²
467 CHF/m²
2.5-Zi. Whg
175 CHF/m²
225 CHF/m²
295 CHF/m²
315 CHF/m²
330 CHF/m²
352 CHF/m²
376 CHF/m²
394 CHF/m²
429 CHF/m²
448 CHF/m²
496 CHF/m²
3.5-Zi. Whg
233 CHF/m²
250 CHF/m²
257 CHF/m²
268 CHF/m²
271 CHF/m²
292 CHF/m²
300 CHF/m²
316 CHF/m²
370 CHF/m²
390 CHF/m²
454 CHF/m²
4.5-Zi. Whg
175 CHF/m²
217 CHF/m²
236 CHF/m²
250 CHF/m²
256 CHF/m²
264 CHF/m²
266 CHF/m²
280 CHF/m²
290 CHF/m²
312 CHF/m²
420 CHF/m²
5.5-Zi. Whg
186 CHF/m²
195 CHF/m²
205 CHF/m²
210 CHF/m²
210 CHF/m²
210 CHF/m²
224 CHF/m²
238 CHF/m²
246 CHF/m²
246 CHF/m²
246 CHF/m²
Verteilung der Mietpreise nach Wohnungstyp – Mikrolage
Inserate – Mikrolage
Inserate in der Mikrolage im vergangenen Jahr. Farbe zeigt Jahresmietpreis pro m².
Inserate nach Mietfläche, Mietpreis und Wohnungstyp.
Mietpreise – Makrolage
Anzahl Inserate in der Gemeinde: 272
Quantilsverteilung der Mietpreise (CHF/Monat) – Makrolage
Typ
Min.
10%
20%
30%
40%
Median
60%
70%
80%
90%
Max.
1.5-Zi. Whg
217 CHF/m²
253 CHF/m²
294 CHF/m²
316 CHF/m²
321 CHF/m²
344 CHF/m²
413 CHF/m²
430 CHF/m²
444 CHF/m²
467 CHF/m²
467 CHF/m²
2.5-Zi. Whg
175 CHF/m²
227 CHF/m²
297 CHF/m²
318 CHF/m²
333 CHF/m²
351 CHF/m²
373 CHF/m²
394 CHF/m²
428 CHF/m²
448 CHF/m²
496 CHF/m²
3.5-Zi. Whg
233 CHF/m²
248 CHF/m²
255 CHF/m²
268 CHF/m²
271 CHF/m²
289 CHF/m²
300 CHF/m²
315 CHF/m²
370 CHF/m²
390 CHF/m²
454 CHF/m²
4.5-Zi. Whg
175 CHF/m²
218 CHF/m²
240 CHF/m²
250 CHF/m²
256 CHF/m²
264 CHF/m²
266 CHF/m²
280 CHF/m²
290 CHF/m²
312 CHF/m²
420 CHF/m²
5.5-Zi. Whg
186 CHF/m²
198 CHF/m²
210 CHF/m²
210 CHF/m²
210 CHF/m²
210 CHF/m²
210 CHF/m²
228 CHF/m²
246 CHF/m²
246 CHF/m²
246 CHF/m²
Verteilung der Mietpreise nach Wohnungstyp – Makrolage
Inserate – Makrolage (Gemeinde Bassersdorf)
Inserate in der Gemeinde Bassersdorf im vergangenen Jahr. Farbe zeigt Jahresmietpreis pro m².
Inserate nach Mietfläche, Mietpreis und Wohnungstyp.
Annahmen: Mehrfamilienhaus · 3. OG ·
1.5-Zi. 35 m² · 2.5-Zi. 60 m² · 3.5-Zi. 85 m² · 4.5-Zi. 105 m² · 5.5-Zi. 120 m²
Bauperiode
1.5 Zi.
2.5 Zi.
3.5 Zi.
4.5 Zi.
5.5 Zi.
1950
467 CHF/m²/J
321 CHF/m²/J
272 CHF/m²/J
264 CHF/m²/J
258 CHF/m²/J
1965
465 CHF/m²/J
326 CHF/m²/J
273 CHF/m²/J
266 CHF/m²/J
256 CHF/m²/J
1980
478 CHF/m²/J
323 CHF/m²/J
283 CHF/m²/J
278 CHF/m²/J
267 CHF/m²/J
1995
460 CHF/m²/J
325 CHF/m²/J
291 CHF/m²/J
280 CHF/m²/J
257 CHF/m²/J
2010
481 CHF/m²/J
352 CHF/m²/J
312 CHF/m²/J
310 CHF/m²/J
289 CHF/m²/J
2025
538 CHF/m²/J
389 CHF/m²/J
375 CHF/m²/J
356 CHF/m²/J
346 CHF/m²/J
Einfluss des Geschosses auf Mietpreise
Annahmen: Mehrfamilienhaus · Baujahr 2025 ·
1.5-Zi. 35 m² · 2.5-Zi. 60 m² · 3.5-Zi. 85 m² · 4.5-Zi. 105 m² · 5.5-Zi. 120 m²
Geschoss
1.5 Zi.
2.5 Zi.
3.5 Zi.
4.5 Zi.
5.5 Zi.
EG
561 CHF/m²/J
393 CHF/m²/J
355 CHF/m²/J
343 CHF/m²/J
343 CHF/m²/J
1.OG
566 CHF/m²/J
387 CHF/m²/J
354 CHF/m²/J
336 CHF/m²/J
339 CHF/m²/J
2.OG
577 CHF/m²/J
389 CHF/m²/J
354 CHF/m²/J
344 CHF/m²/J
346 CHF/m²/J
3.OG
577 CHF/m²/J
389 CHF/m²/J
365 CHF/m²/J
346 CHF/m²/J
346 CHF/m²/J
4.OG
585 CHF/m²/J
390 CHF/m²/J
375 CHF/m²/J
353 CHF/m²/J
350 CHF/m²/J
5.OG
556 CHF/m²/J
388 CHF/m²/J
382 CHF/m²/J
355 CHF/m²/J
340 CHF/m²/J
12. Prognose
Die Prognosen basieren auf historischen Inseraten und zeigen die mögliche Entwicklung des
Median-Mietpreises unter verschiedenen Referenzzinsszenarien.
Entwicklung der Mietpreise je nach Referenzzinsszenario